Designing the ground floor of our home
March 13, 2023A little over a year ago, we bought ourselves a house near the forest in Amsterdam, The Netherlands. The house was built in 1907 or 1908, and we will slowly bring parts of it up to modern standards. This page highlights our thinking as we designed an aspirational version of the ground floor.

The house we found has been renovated a few times over the years, with notable projects being an extension of the garden and an extension of the ground floor.

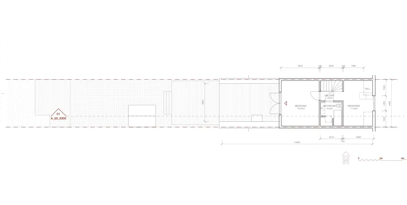
Seen from the sidewalk, the house looks small and low, especially in comparison to the neighbours on the left. But, the total living space makes up a comfortable 93m². The garden is roughly 14 meters long, and about 4 meters wide, and skirts up to a canal. The front of the house borders a somewhat busy street, but the windows are well shielded from passers-by and very well insulated. In its current layout, the house has an open and spacious ground floor, and two bedrooms and a bathroom on the top floor.


The first floor layout is a bit more boxy, and doesn't extend quite as far as the ground floor does. The bedroom opens to a spacious roof terrace which basks in sunshine until the sun sets behind the trees across the canal.
Drawing up a plan for the future
We knew we wanted to replace the bathroom shortly after moving in. It was constructed poorly, and the furniture & fixtures are outdated. Considering this, we wanted to make sure we weighed our options right from the start, and potentially take on multiple projects in one go.
We asked a friend of my partners' for help. Hallstein Guthu is the founder of a Norwegian architecture studio, and they helped us workshop and draw up a plan we could work towards.
I'll run through the sketches below. Drawn by Hallstein and his colleague Zoe, taking you through our thinking along the way.

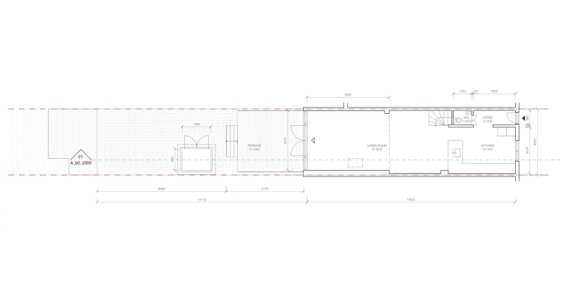
General notes on the ground floor
As the house is narrow and rectangular, we wanted to create one line of sight through it so you can see the lush green bordering the canal behind the house as soon as you come in.
Flexibility and privacy were our main concerns for the ground floor. The current open floor plan is nice and spacious, but also feels like it wastes space in places. And, the possibilities for taking up our own space without disturbing the other could be improved.
With the extra bedroom on the upper floor becoming a dedicated home office, some flexibility in terms of hosting a guest would be welcome—all of these were considerations we spoke about with HALLSTEIN while designing the floor plan.
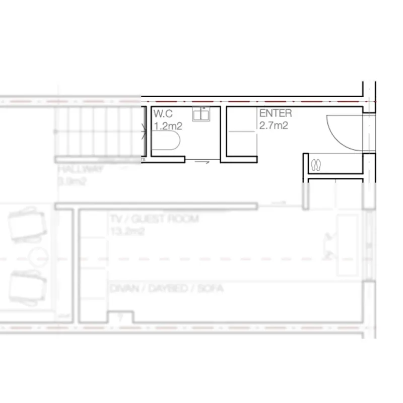
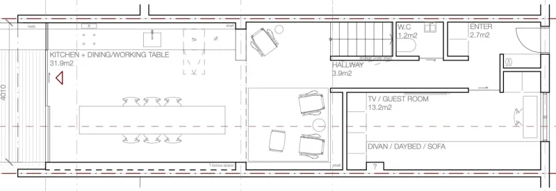
Hallway
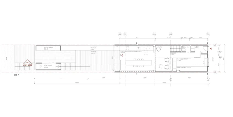
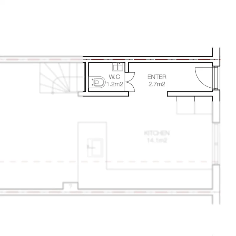
An odd characteristic of Dutch houses is the placement of the toilet on the ground floor. It is usually located in the hallway, which can make for a curious welcome. In the sketch above we did not move the toilet, but shortened the hallway, using the space more effectively by creating some storage space. As you can see in the sketch of the new hallway, we eek into the living space a bit to create a wardrobe, and the toilet entrance no longer greets you upon coming through the front door.


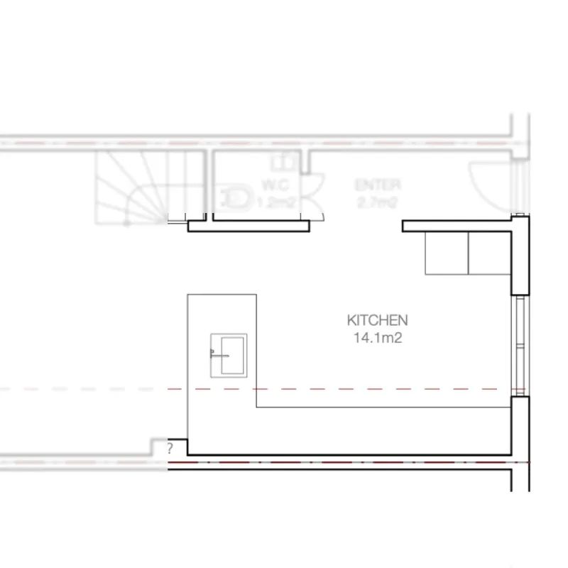
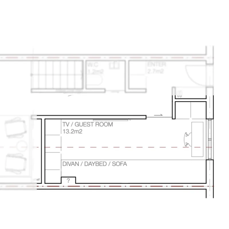
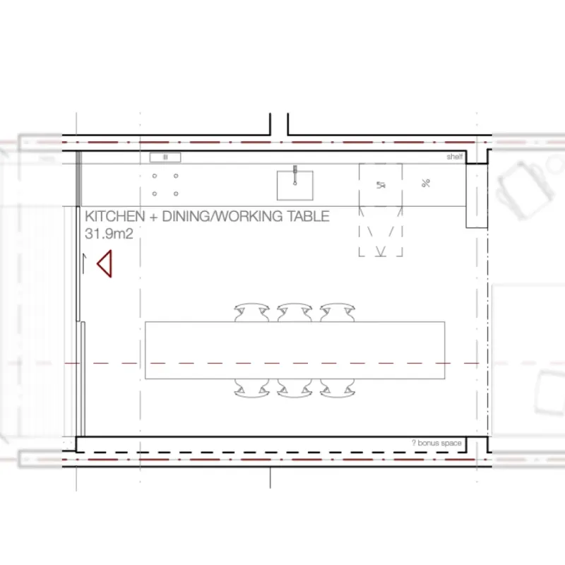
Kitchen → TV/guest room
The kitchen is currently located in the east-facing, darkest part of the ground floor. We love to cook and spend a lot of time in the kitchen, so in an ideal scenario we would move it to the other side of the house. Our thinking is that we instead can create a room here that can serve as a TV room or a guest room, since you don't need lots of daylight for either, with the possibility of closing it off with a sliding door.
We've reserved some space for storage next to the window, as well as against the left wall, and made space for a small desk or writing table to sit and work at, if necessary.


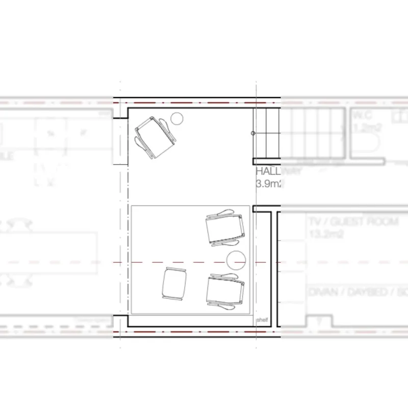
Dining area → Seating & reading area
Our current dining area would be transformed to a seating & reading area, as our sofa would move to the TV room. Along with a floor-to-ceiling bookshelf, embedding our collection of books within the larger space, this would be a place to sit down and pick up a book, or hang out with guests.


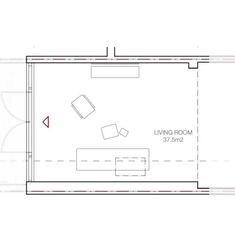
Living room → Cooking, dining, working
One of our wishes is to have a large dining table that we can use for a multitude of things—breakfasts, lunches and dinners; reading, working and hobbies. Moving the kitchen to the back of the house and placing a large dining table in the space allows us to make use of the lightest, sunniest side of our home for the activities that require the most daylight.


Which brings us to the final version of the ground floor, seen below, along with some renders to help us imagine the reality of this design. Spacious, still, but more focused, too. More storage, and clean lines. No space wasted, yet not overly busy, we think this layout would make great use of the ground floor.




Perhaps the greatest illusion of all, is the illusion a home will ever be finished.
— Freely translated from Andrea Prins' “Wonen” (2021)
A North Star
The plan outlined above is, of course, a costly endeavour. Given the current price of labour and materials, taking up the project in one go is something we can not afford to do. Since creating these sketches together with HALLSTEIN, however, we've worked on smaller projects on the first floor of our house, as well as a larger project I may write about later.
Our plan is to live in this home for the next ten years. Revisiting these sketches for this write-up, I realise how nice a home these changes would make. It utilises the space in a much better way (creating nooks for reading, an open space for entertaining, and a secluded space for cozying up by the TV, or for hosting a guest), and we may work towards it in smaller iterations, chipping away at what—one day—may become the perfect ground floor of our home.